A Pacengo, sul lungolago in direzione Lazise a poco più di 200 metri dal porto, nell’ambito della realizzazione delle opere perequative/compensative definite per il PUA Pacengo Alto Pacengo Porto, è prevista la realizzazione di un nuovo centro nautico.
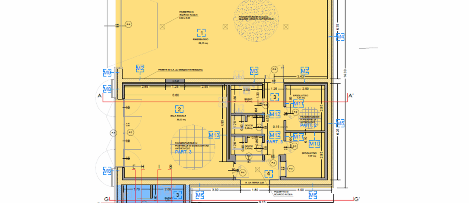
Il Progetto, che risale al 2016 (!) prevede una superficie complessiva di circa 200 m², così suddivisa: 90 m² destinati al rimessaggio barche, una sala sociale di circa 40 m², uno spazio non meglio definito – probabilmente destinato a centrale termica – e 36 m² per spogliatoi e servizi igienici. Con un secondo stralcio dei lavori, poi, è prevista anche la realizzazione di bagni pubblici al servizio degli utenti della spiaggia (quelli che LAZISE CIVICA chiede da 2 anni che vengano realizzati in più punti del comune).
A colpire immediatamente è la totale assenza di spazi esterni fruibili intorno all’edificio, elemento che limita fortemente le possibilità operative di una struttura che dovrebbe supportare un’attività sportiva complessa come quella nautica.
Già da un primo sguardo si percepisce che la progettazione non porta la firma di specialisti del settore: lo spazio destinato al rimessaggio è insufficiente per ospitare le imbarcazioni comunemente utilizzate nelle società di canottaggio o canoa. Basti pensare che, mentre una canoa può misurare 2 metri, un “quattro” da canottaggio arriva a 14 metri e un “otto” a 18 metri: misure incompatibili con le dimensioni previste (13 metri).
La scelta di inserire una “sala sociale” di dimensioni importanti, a scapito di spazi più funzionali come un ufficio o una palestra, fa pensare a un’impostazione più ricreativa che sportiva, quasi da club privato o sede di associazioni piuttosto che da centro sportivo aperto ai giovani.
Anche la distribuzione interna degli spogliatoi desta perplessità: le docce si trovano fuori dagli spogliatoi, costringendo gli utenti ad attraversare un corridoio per poterne usufruire. Non è inoltre chiaro se gli ambienti siano stati progettati per garantire l’accessibilità a persone con disabilità, requisito imprescindibile per qualsiasi struttura moderna.
Va poi sottolineato che la parte superiore della struttura è prevista in uso gratuito al futuro hotel a 5 stelle che sorgerà accanto. Questo significa che nemmeno quella superficie potrà essere sfruttata per attività sportive o di supporto al centro nautico, riducendo ulteriormente la funzionalità complessiva del progetto.
Inoltre, se il centro verrà effettivamente utilizzato per attività nautiche, sarà necessario installare un pontone o pontile per le operazioni di varo e alaggio delle imbarcazioni da competizione. Si tratta di un’infrastruttura fondamentale, ma temiamo che all’interno del Comune pochi siano pienamente consapevoli di questa esigenza e delle implicazioni tecniche, ambientali e autorizzative che comporta.
La mancanza di un’area esterna recintata e attrezzata penalizza gravemente la logistica: nelle attività sportive giovanili, la partecipazione a gare e regate richiede carrelli per il trasporto barche e un furgone per il traino, mezzi che necessitano di spazi di manovra e sosta sicuri.
Il rischio è di perdere un’occasione preziosa. Lazise è uno dei pochi comuni del lago a non avere una società nautica, e un progetto ben studiato avrebbe potuto colmare questa lacuna, creando un centro sportivo funzionale, inclusivo e capace di favorire la crescita delle attività nautiche sul territorio. Un’infrastruttura ben concepita avrebbe potuto rappresentare anche un’alternativa sportiva valida da offrire alla cittadinanza, vista la scarsità di impianti e opportunità per la pratica sportiva presenti nel comune di Lazise. Portare avanti un’iniziativa di questo tipo senza rivedere criticamente il progetto significa condannare la struttura a una destinazione d’uso limitata e poco lungimirante.
La questione riveste ancor maggior valore se si considera che una società o associazione sportiva dedita alla Nautica rappresenterebbe una (quasi unica) alternativa all’unico sport dedicato ai giovani a Lazise, il calcio. La Nautica sarebbe una valida alternativa per i ragazzi del circondario in una attività storica che fonda le sue radici prima dell’invenzione del calcio moderno.
Nelle immagini che seguono trovate il posizionamento della Remiera (il rettangolo rosso in riva al lago) che è ancora provvisorio, la sezione e la planimetria di progetto.




